GFF 16 Cowper Road, Worthing, West Sussex, BN11 4PD

Ref: Lot 4

Loading the bidding panel...

Registration Guide

Finance available on this property

Contact agent


Town & Country Property Auctions Dorset, Devon and Cornwall
Town & Country Property Auctions Dorset, Devon and Cornwall

Unconditional (Buyer's Premium)


UNCONDITIONAL LOT Buyers Premium Applies Upon the fall of the hammer, the Purchaser shall pay a £5,000 or 5% deposit and a 2%+VAT (subject to a minimum of £8,500+VAT) buyers premium and contracts are exchanged. The purchaser is legally bound to buy and the vendor is legally bound to sell the Property/Lot. The auction conditions require a full legal completion 56 days following the auction (unless otherwise stated).

Description

Town & Country Property Auctions are delighted to offer for sale by public auction this 1 bedroom apartment just half a mile from Worthing Seafront and 150 yards to Victoria Park, this very spacious ground floor apartment with a footprint in excess of 900 square feet and with potential to be increased to 2 bedrooms, is ideal for refurbishment and modernisation. It boasts a private courtyard garden and is conveniently situated only half a mile from Worthing train station and town centre.

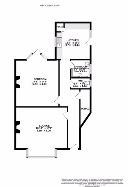
The apartment has a share of freehold of the Victorian building that it is part of. Accessed via a communal hallway leading to the front door and opening to a hallway which leads to a generously proportioned lounge with a large bay window and a fire place. The large adjoining bedroom also has a fire place and features French doors opening out to the private rear garden. Across the hall is a shower room, a separate WC and storage. The kitchen / diner is to the rear of the home and has a door leading out to the side of the building, providing alternative access. To the rear of the property, the paved courtyard garden is complimented by a brick built shed, ideal for securely storing garden furniture, tools and bicycles.

The property will be entered into our 31st January auction which is held online and starts at 10am. You must register to bid and download the legal pack.

PROPERTY FEATURES

. Number of Bedrooms: 1
. Reception Rooms: 1
. Spacious Ground Floor Apartment (900 sq ft)
. Potential To Convert To A Two Bedroom
. Private Courtyard Garden with Garden Shed
. In Need Of Refurbishment
. Close To Beach, Town Centre & Train Station
. Character & Period features
. High Ceilings
. No Chain
. Shower Room & Separate WC
. Council tax band: B
. Approx 970 years Remaining on The Lease
. Rental Value Per Month: £1000+
. 56 Day Completion

The property is available for viewing immediately. Please contact Town & Country Property Auctions for more information and to register for the auction. The auction will be held online, and registration is now open.

Tenure

Leasehold

Buyers Premium

* Buyers Premium Applies

Special Conditions

Any additional costs will be listed in the Special Conditions within the legal pack and these costs will be payable on completion. The legal pack is available to download free of charge under the ‘LEGAL DOCUMENTS’.  Any stamp duty and/or government taxes are not included within the Special Conditions within the legal pack and all potential buyers must make their own investigations.

Council Tax Band

B


* The Guide Price given is an indication as to where the Reserve is currently set. The Reserve is the minimum price that the auctioneer is authorised by the vendor to sell the property for. It is subject to change throughout the marketing period. Where the Guide Price is a single figure, the current Reserve will not be more than 10% above that single figure, and where a price range is given (i.e. £50,000 - £55,000), the Reserve will not exceed the upper level of the range. It is not necessarily what the auctioneer expects it will sell for.

We would like to point out that all measurements, floor plans and photographs are for guidance purposes only (photographs may be taken with a wide angled/zoom lens), and dimensions, shapes and precise locations may differ to those set out in these sales particulars which are approximate and intended for guidance purposes only.

These particulars, whilst believed to be accurate are set out as a general outline only for guidance and do not constitute any part of an offer or contract. Intending purchasers should not rely on them as statements of representation of fact, but must satisfy themselves by inspection or otherwise as to their accuracy. No person in this firms' employment has the authority to make or give any representation or warranty in respect of the property.

Viewing: Due to the nature and condition of auction properties, the auctioneers highlight the potential risk that viewing such property carries and advise all to proceed with caution and take necessary requirements to ensure their own safety whist viewing any lots offered. Viewings are conducted entirely at the potential buyers own risk, these properties are not owned or controlled by Town & Country Property Auctions and the auctioneers will not be held liable for loss or injury caused while viewing or accessing the lot. Due to the nature of some auction properties, electricity may not be turned on, therefore viewing times are restricted. Viewers will need to bring their own lighting/ ladders if wanting to inspect cupboards, cellars and roof spaces. Some viewings are carried out by third party agents and we will endeavour to give appropriate notice should the published viewing time change. Town & Country Property Auctions will not be liable for any costs or losses incurred due to viewing cancellations or no shows.

All auctioneer fees and deposits stated are non-refundable. The deposit will be applied toward the final purchase price. Auctioneer fees, while not contributing to the purchase price, will still be included in the total chargeable consideration of the property when calculating Stamp Duty Land Tax, Land Transaction Tax, or Land and Buildings Transaction Tax (as applicable depending on whether the property is located in England, Wales, or Scotland).

Register for auction alerts

By subscribing here you agree to receive relevant emails, news and updates from Town & Country Property Auctions. You can unsubscribe at any time.

Register for auction alerts

Selling

No fuss, fast & free*

Town and Country offer a free selling service to a growing number of people choosing to sell their property quickly and easily through auction.

*Contact individual regions for cost

Buying

How to bid

Our buying at auction guide will help you throughout the process providing you with guidance to confidently secure your purchase.